For Sale
c. 1880 Italianate
Clinton, New York 13323
Village landmark!
Scroll down below the map for more information
| Bedrooms | 4 |
| Full Baths | 1 |
| Half Baths | 2 |
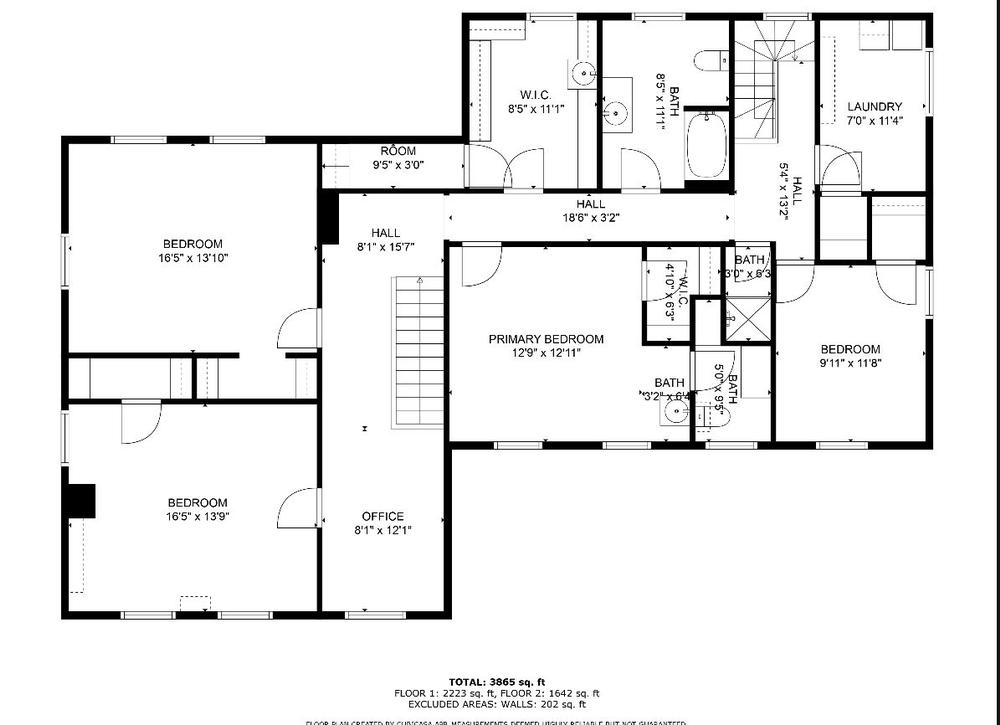
| Heated Sq. Ft. | 3,865 |
| Acres | 1.0 |
| MLS No. | S1634853 |
Features.
- 2 Car Garage
- Deck
- 2nd Staircase
- Built-in Bookcases
- Built-in Cabinets
- Fireplaces
- Wood floors
- Cast Iron Radiators
- French doors
- Stair lift
Like This Listing?
Contact the Agent directly.
Showings by appointment only.
Barbara Owens
Mobile: 315 725-3836
Barbara.Owens@Huntrealestate.com
Tell 'em you saw it on OldHouses.com!
More About This House
From the moment you arrive the home enchants with its timeless curb appeal and rich architectural details. Inside, you'll find nearly 4,000 sq ft of living space brimming with character- hardwood floors, stained glass windows, and abundant period details!The classic floor plan includes a grand double parlor with fireplace, a formal dining room and both front and rear staircases. Upstairs, a spacious hall/gathering area leads to 4 bedrooms, a large laundry room and 1-2 full bathrooms.
A unique highlight is a substantial first floor wing that once served as the Dr.'s office -- with a waiting room, and exam rooms. This versatile area could easily accommodate an in-home business, office, or be reimagined as additional living space! There a dry walk-out basement -- once used as an artists studio -- offers even more potential.
Outdoors, private rear deck overlooks the deep, beautifully treed back yard.
Scroll through the photos and the floor plans and reach out to your favorite Realtor to explore this one-of-a-kind offering!
Comments & Feedback
All information deemed reliable but not guaranteed and should be independently verified. All properties are subject to prior sale, change or withdrawal. OldHouses.com is not responsible for any typographical errors, misinformation, misprints and shall be held totally harmless.








































.jpeg)