For Sale
c. 1777 Colonial
Weare, New Hampshire 03281
The Tristram Collins House
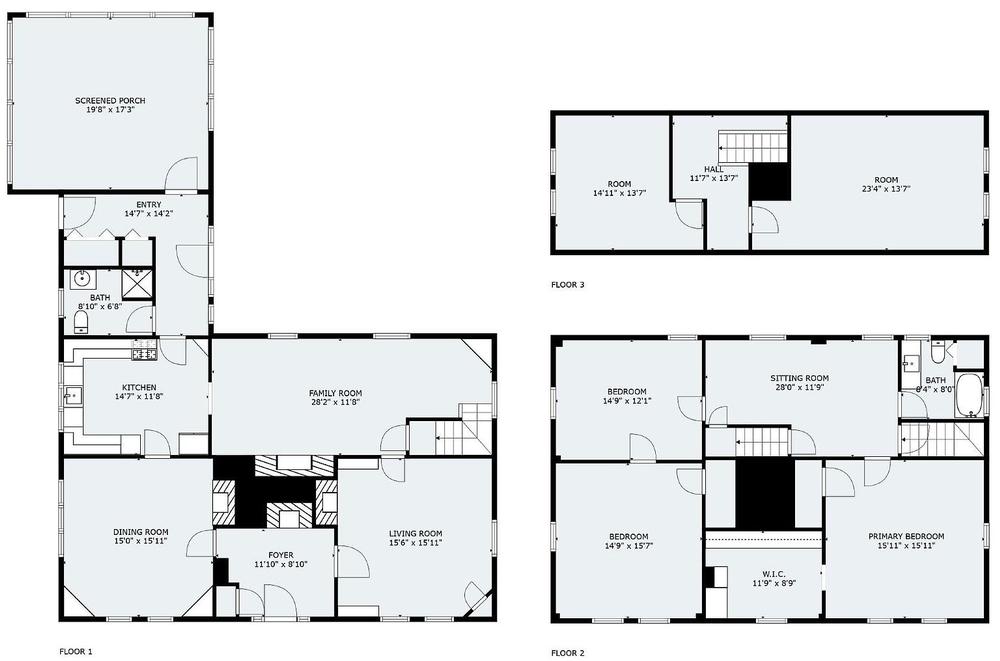
The applianced kitchen has good storage, 2 dishwashers, and a dual-fuel Wolf range for the chef! The ell holds a 3/4 bath, a laundry with W&D, and direct access into the 17’ x 19’ screened porch where warm weather meals, reading, and bird watching are enjoyed.
Upstairs via a turned staircase are 2 front BRs, one with a walk-in closet. Two other rooms may be used as a bedroom and a sitting room.
The converted attic is a dream for both the telecommuter and the creative spirit, with an office tucked neatly at one end, and a studio at the other, each with full walls of storage.
Outside is magical! There are raised garden beds, fruits and berries, and a fire pit. A tranquil water garden has a wide variety of plantings and color from spring to fall. It was designed with a small pond and waterfall as its focal point. Acres of woods offer walking trails, and long road frontage assures your setting is permanent.
It’s a short walk to Chase Park with a beach and boat launch on 268-acre Lake Horace. In winter, Pat’s Peak, with night skiing, is just 10 minutes away!
Whether a forever home or a seasonal generational home, this one will delight your historic senses!
Features.
- 1st floor bath
- 1st floor laundry room
- Attic
- Crawl Space
- Dining room
- Foyer
- Living room
- Unfinished basement
- Walk-up attic
- Master bedroom upstairs
- 2 Car Garage
- Driveway - Dirt
- Garden
- Pond
- Built-in Bookcases
- 4 Fireplaces
- Standing Seam Metal Roof
- Walk-In Closet(s)
- Wood floors
- Dishwasher
- Oil Heating
- Range
- Refrigerator
- Septic Tank
- Hand-hewn Beams
- Plaster Walls
- Stained woodwork/doors
- 2 Finished rooms in walk-up attic
- Paneled walls
- Raised garden beds
- Reflection pond
- Screen porch
- Screen porch
- Walking trails on site
- Wide plank wood floors
- Wood stove
Like This Listing?
Contact the Agent directly.
Request a listing packet. Showings by appointment, please.
Farms & Barns Real Estate, LLC
Shirley Sullivan
Principal Broker NH License 002152
Mobile: 603-493-1493
Phone: 800-639-4057 x701
shirley@farmsandbarns.com
Principal Broker @ Farms & Barns
Tell 'em you saw it on OldHouses.com!
Comments & Feedback
All information deemed reliable but not guaranteed and should be independently verified. All properties are subject to prior sale, change or withdrawal. OldHouses.com is not responsible for any typographical errors, misinformation, misprints and shall be held totally harmless.























































