From The Archives
1907 Queen Anne Victorian
Oberlin, Kansas 67749
V.A. Griffith House
Large corner lot with detached 4 car garage that was previously the carriage house for this historic Victorian home that was once the towns funeral home. Enclosed privacy patio with area for gardening and hot tub. All furnishings negotiable, many period appropriate furnishings! Has been used as an AirBnB, great location for travelers, money making property, not far off main highway.
All antiques negotiable for purchase
Antiques negotiable for purchase
Antiques negotiable for purchase
Antiques negotiable for purchase
Antiques negotiable for sale
Full tub with shower
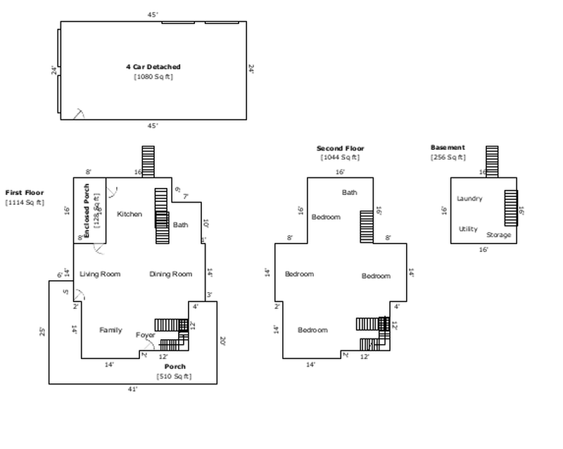
| 2 Stories | |
| Bedrooms | 4 |
| Full Baths | 2 |
| Heated Sq. Ft. | 2,758 |
| Lot Size | 75x120 |
Features.
- 1st floor bath
- Attic
- Basement
- Dining room
- Unfinished basement
- Walk-up attic
- Master bedroom upstairs
- Driveway - Paved
- Fenced Yard
- Patio
- Sprinkler System
- Storm Windows
- Garage Workshop
- 2nd Staircase
- High Ceilings
- Jacuzzi
- Original wood windows
- Wood floors
- Shingle Roof: Asphalt shingle
- Central air
- City sewer
- City water supply
- Dishwasher
- Disposal
- Gas heating
- Range
- Refrigerator
- Sprinkler System
- Carriage House
- Claw-foot Tub(s)
- Plaster Walls
- Pocket Doors
- Servant's Staircase
- Wrap-Around Porch
- 4 car garage
- Covered porch
No Contact Information.
This listing is archived and is not for sale.
Contact information is not available for archived listings.
Archived in April, 2021
Comments & Feedback
All information deemed reliable but not guaranteed and should be independently verified. All properties are subject to prior sale, change or withdrawal. OldHouses.com is not responsible for any typographical errors, misinformation, misprints and shall be held totally harmless.


















